Bygningsvernsenter Vega

Typologi: Museum / Galleri
Areal: BTA 800m2
Status: Skisseprosjekt
Sted: Vega

Illustrasjoner: Tanken arkitektur

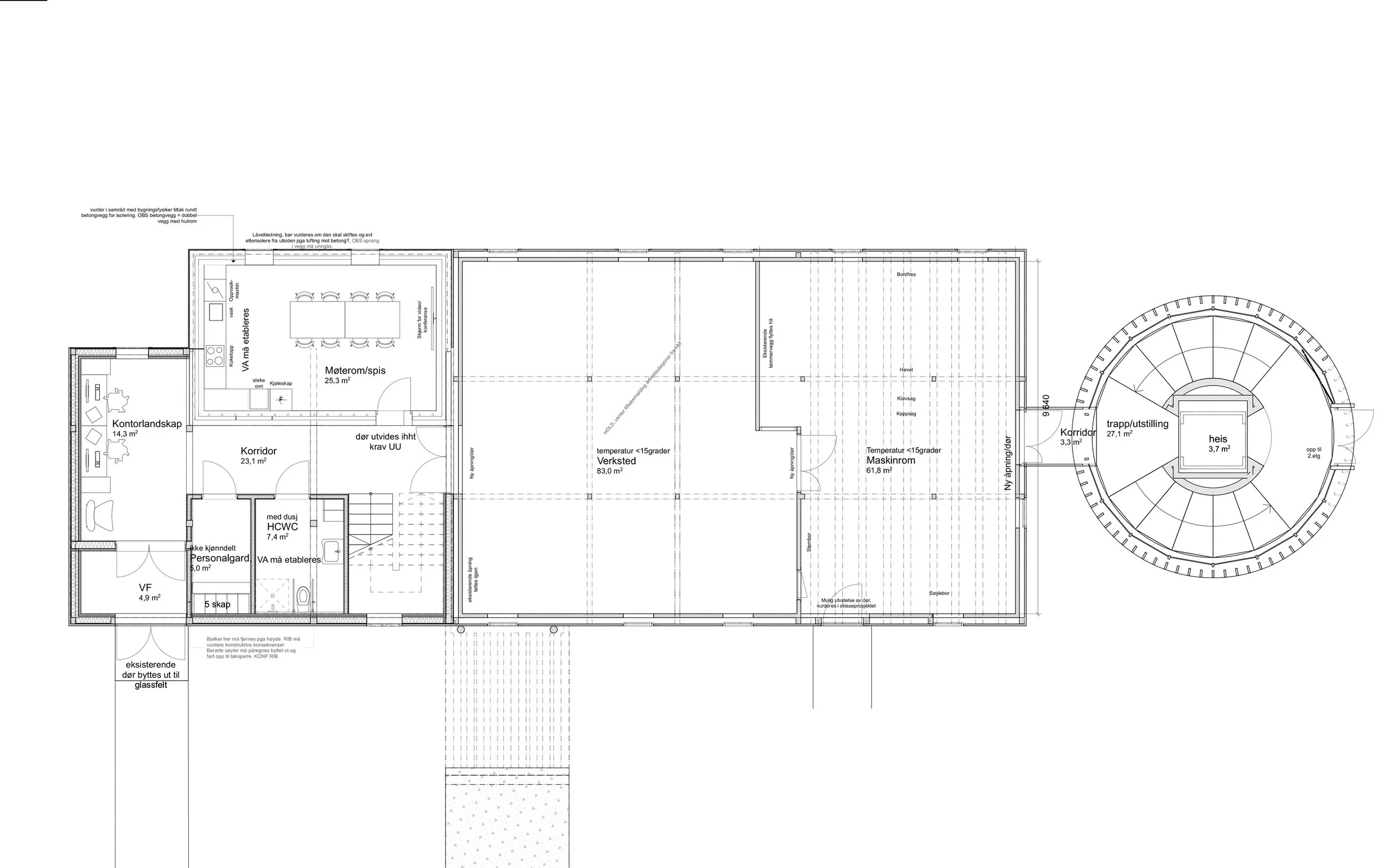
Tanken Arkitektur har i samarbeid med Helgeland Museum og Vega kommune utført et skisseprosjektet for deler av den gamle prestegårdseiendomen på Vega. Eksisterende låvebygg og fjøs er i dag i bruk som lager til diverse museumsgjennstander. Bygningen
består av tre deler trolig med ulikt byggeår. Den eldste delen er fra slutten av 1800-tallet.

  • Bygget er oppført som en stenderverkskonstruksjon og deler av fjøs er utført i laftet tømmer. Låven på Vega er i dag SEFRAK registrert, men har utover dette ikke ytterligere status som vernet eller fredet.

    Målet med prosjektet har vært å undersøke muligheten for etablering av et bygningsvernsenter i de gamle driftsbygningene. Bygningsvernsentret har som målsetning å formidle byggeskikk, bygnigsvern og tradisjonshåndtverk for publikum igjennom lokaliteter for workshops med tilhørende verksted samt utstillinger fra samlinger.

    Bygget skal i tillegg også ha personalfunksjoner foropptil 3 ansatte, samt en konferansesal for 30 personer til arrangement og kursvirksomhet.

    For å binde sammen alle etasjene og tilgjengeliggjøre bygget for publikum, uten store inngrep i eksisterende bygningsmasse, har vi plassert et tilbygg på vestsiden av eksisterende bygningsmasse. Dette ivaretar alt av vertikal kommunikasjon iht universell utforming og vil kunne fungere som et utstillingslokale.

    Tilbygget er en abstrakt geometrisk form, en sirkel med skår som gir den en elliptisk karakter.



    I kombinasjon med heiskjernen og trappen gir den også en spiral. De rene formene åpner opp for ulike assosiasjoner. Vi har hatt treet i tankene i forhold til detaljering og materialbruk.

    Bygget kan i seg selv være en uthulet stamme, eller så kan man se på heiskjernen som stammen som man beveger seg inn i og rundt, og ytterveggen som greiene.

    Treet er det viktigste materiale i byggeskikken iNorge og på Helgeland. Adkomstbygget er en hyllest til dette materialet.

    Vi ser for oss at materialbruk i interiøret har trematerialet som tema. Det er tilrettelagt for utstilling i adkomstbygget. Her kan man se for seg at det kan formidles ulike bygningstradisjoner og teknikker og bruk av tre som materiale i en moderne kontekst. Noe som kan skape bro mellom fortid og fremtid.

    Designmessig etterstreber vi å gi tilbygget en enkel og rolig fasadeutforming med knappe detaljer og minimalt med åpninger. Dette for å sikre at tilbygget vil underordne seg eksisterende bygg og fremstå som en monolitt. Bygningsstrukturen skal representere dagens moderne trebyggeri med massivtre som konstruksjonselement. Den massive fremtoningen til bygningsmaterialet skal være bærende estetiske kvaliteter i tilbygget.

    Der hvor man ønsker dagslys inn i strukturen har vi plassert inn vinduer bak spilekledningen. Dette for å sikre at vinduer ikke får for mye oppmerksomhet i fasaden. I tillegg ser vi for oss at det er overlys i taket.

Treet er det viktigste materiale i byggeskikken i Norge og på Helgeland. Adkomstbygget er en hyllest til dette materialet.

Forrige
Forrige

Lobben Panorama

Neste
Neste

Leilighet L