Hamnheim

Typologi: Bolig
Status: Konkurranseforslag

Illustrasjoner: Tanken Arkitektur

Visjonen for Hamnheim er å etablere et godt nabolag som utnytter sin unike beliggenhet ved havet og som fremmer fellesskap og samhold igjennom sosiale møteplasser.

  • Inspirasjonen for bebyggelsesstrukturen er hentet fra fiskeværene hvor byggene tradisjonelt ble plassert tett i tett. orientert mot havet. Strukturen forsøker å maksimere utnyttelsen av den tilgjengelige plassen mot sjøen, samtidig skape fellesskap og liv mellom byggene i le for storm og uvær.

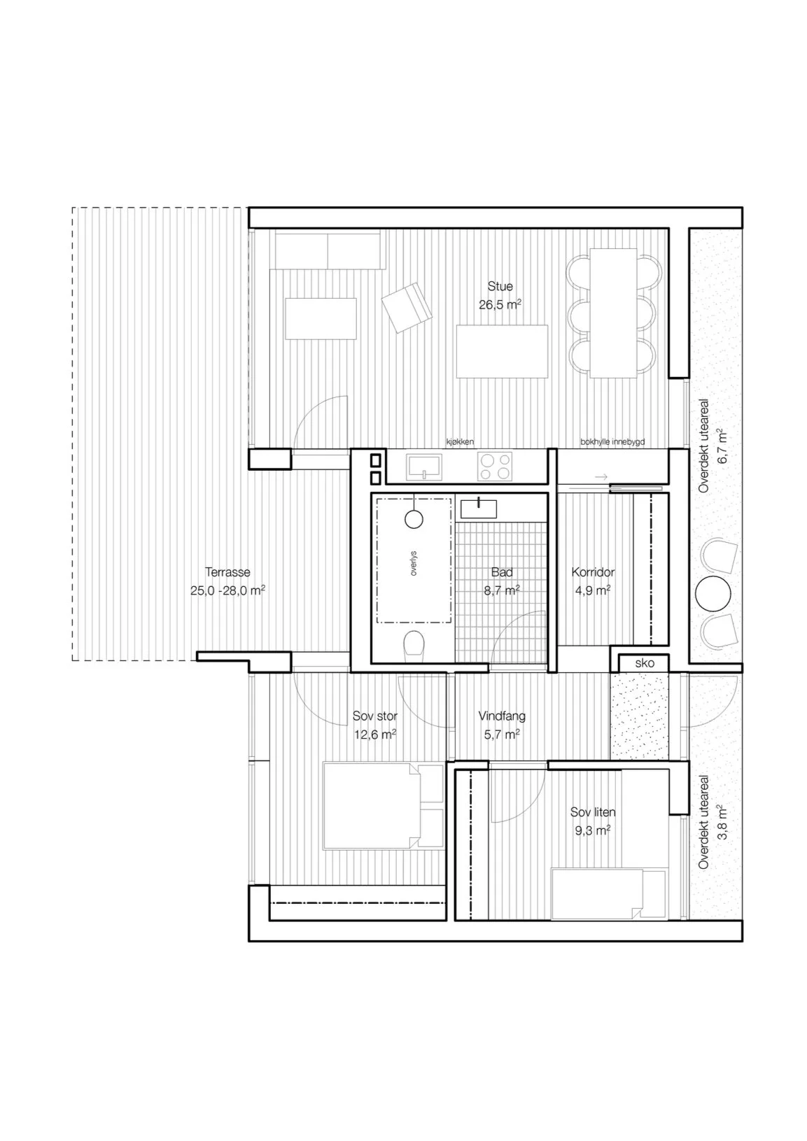
    Boligene med sine private oppholdssoner vender seg utover og utnytter sin unike beliggenhet igjennom visuell og fysisk forbindelse med havet, holmene, fjellene og horisonten.

    Byggene er nøye plassert for å skape en beskyttende skjerm som gir lune uterom. Disse uterommene åpner seg mot sør, hvor inngangspartiene og sosiale fellesfunksjoner bidrar til å aktivere fellesrommene

    Den doble orienteringen innover og utover representerer det komplementære i ønsket om vern og åpenhet. Små gløtt mellom byggene forbinder innenfor og utenfor, og gjør at landskapet og horisonten hele tiden er nærværende.

Tegnforklaring
1. Bolig
2. Eksisterende brygge, servicebygg
3. Felleshuset
4. Paviljong, drivhus
5. Parkering
6. Carport
7. Ny flytebrygge med sauna

Møteplassene

Bebyggelsesstrukturen mot havet rammer inn to skjermede uteoppholdsrom som åpner seg mot sør og blir et lunt fellesareal for beboerne i på Hamnheim. Bygningsstrukturen henvender seg mot gata og knytter seg sammen med det øvrige nabolaget på Hamnholmen. Dette er et attraktivt rekreasjonsområde med stranda som offentlig møteplass. Det er mulig å se for seg at hele, eller deler av byggene med fellesfunksjoner på Hamnheim kan inngå som en del av det offentlige tilbudet på Hamnholmen.

Det ene felleshuset er utformet for å inneholde konkrete innendørsaktiviteter som eksempelvis felleskjøkken, verksted eller treningsrom.  Det andre bygget utformes som en paviljong tilrettelagt for uformelle utendørs aktiviteter under tak slik som drivhus, utendørs arbeidsbenk/utekjøkken, sittepass i solveggen og liknende. Fellesbyggene står inntil hverandre og åpner seg opp mot uterommet som tenkes utført med et dekke av brostein slik at plassen har mulighet for ulike bruk og aktivitet.

Taket er tekket med sinuskorrugerte stålplater, et materiale med historisk forankring i kystarkitekturen.

Hovedkroppen er bygget i trevirke, som gir varme og naturlig tilpasning til omgivelsene.

Basen er utført i betong, noe som gir en solid og værbestandig struktur.

Forrige
Forrige

Havbrukssenter

Neste
Neste

Vitensenter Nordland